
Thursday 16 October 2025
![]() |
Hazellville Road, Whitehall Park N19 3NA London N19 3NA Selling Price £995,000 Freehold |
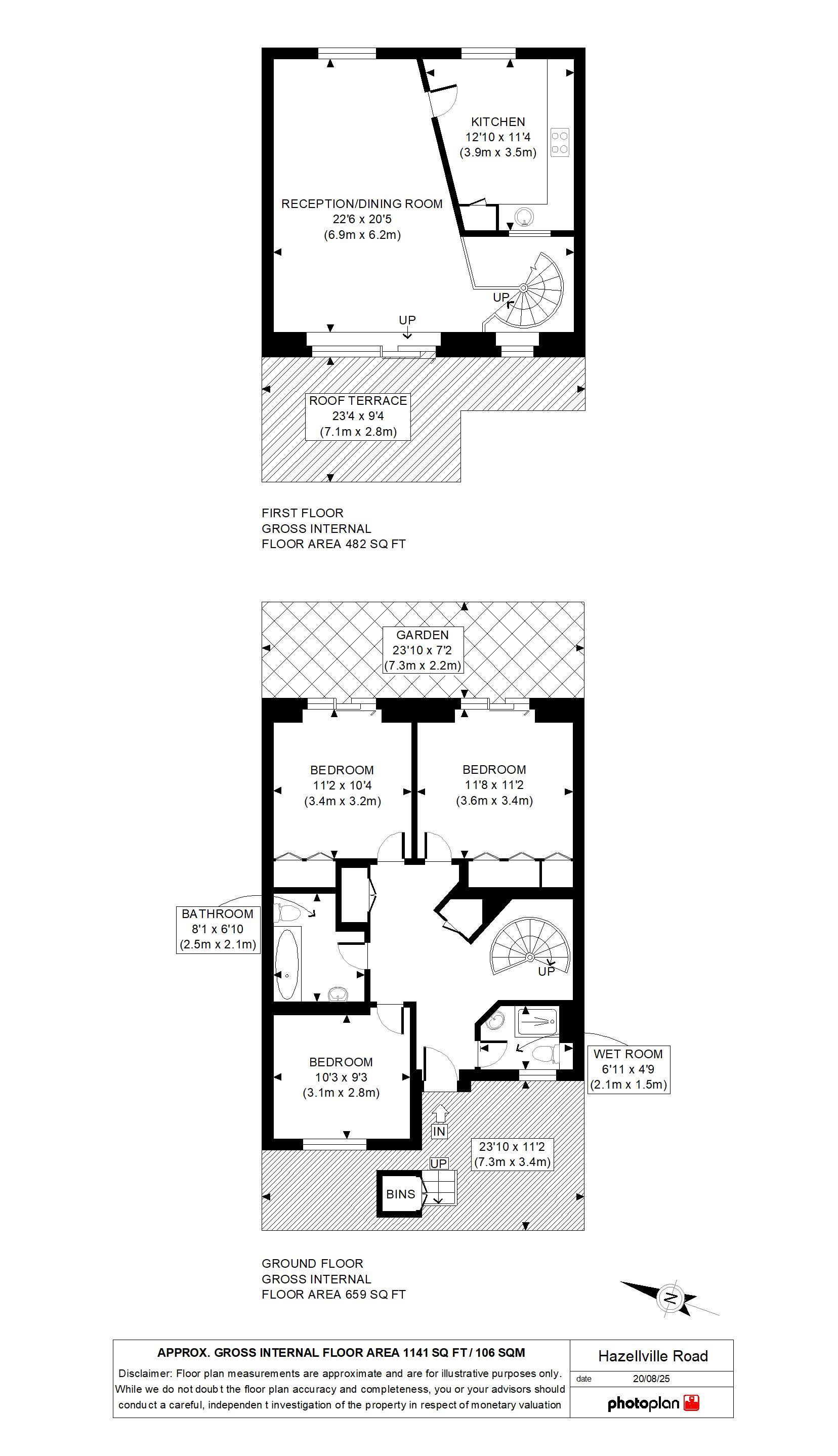
SUPERB CONTEMPORARY HOUSE Built approximately 25 years ago, but more recently significantly uplifted by the current owner, this superb Three Bedroom, Two Bathroom, 'upside down' contemporary house, offers very practical accommodation over two light and airy floors. With a sun-soaked elevated terrace to front and more shaded small garden to rear you will always find a good place to relax outdoors. Located at the upper end of Hazellville Road, a selection of primary schools, (Whitehall Park; Ashmount and Coleridge) are within close proximity as are an Artisan bakery/coffee shop, dry cleaner, restaurant and convenience store for all your day-to-day items. Three Double Bedrooms Bathroom with WC Shower Room with WC 22ft x 20ft Dual Aspect Reception Modern Fitted Kitchen Diner UVPC Double Glazed Windows and Doors Courtyard Garden Sun-Soaked Elevated Terrace 1141 SQ FT / 106 SQM Freehold |
Facade |
Hallway |
Bedroom 1 - 3.56m (11ft 8in) x 3.4m (11ft 2in) |
Bedroom 2 - 3.4m (11ft 2in) x 3.15m (10ft 4in) |
Bedroom 3 - 3.12m (10ft 3in) x 2.82m (9ft 3in) |
Bathroom - 2.46m (8ft 1in) x 2.08m (6ft 10in) |
Shower Wet Room - 2.11m (6ft 11in) x 1.45m (4ft 9in) |
Reception - 6.86m (22ft 6in) x 6.22m (20ft 5in) |
Reception. |
Kitchen Diner - 3.91m (12ft 10in) x 3.45m (11ft 4in) |
Kitchen Diner. |
Rear Garden - 7.26m (23ft 10in) x 2.18m (7ft 2in) |
Sun Terrace - 7.11m (23ft 4in) x 2.84m (9ft 4in) |
_fs.jpg)