Thursday 30 April 2026
![]() |
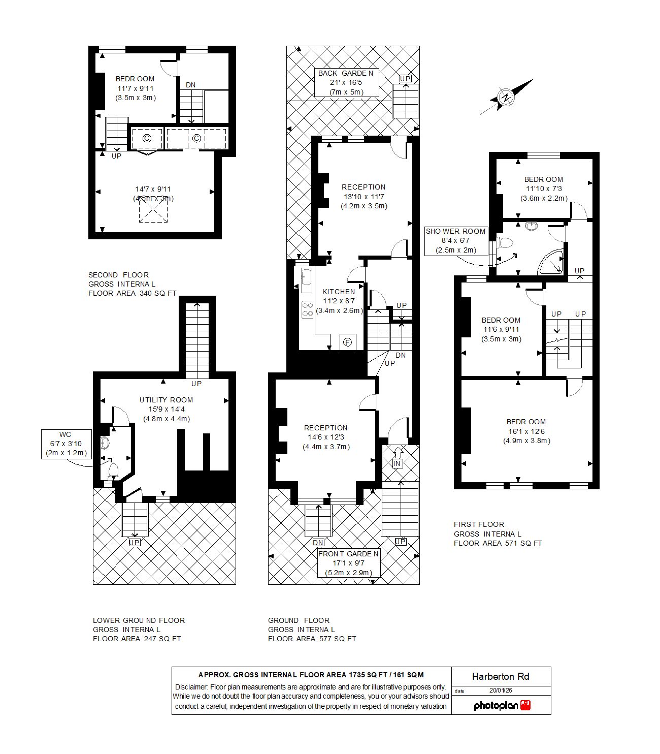
| Harberton Road Whitehall Park N19 3JS London N19 3JS Selling Price £1,295,000 Freehold |
**** SALE AGREED **** CHAIN FREE HOUSE Potentially of interest to anyone who has clients visit them at home, ie therapists, yoga instructors etc, this ready to move into split level Victorian house features a secondary street level door which opens into a functional 'studio/office' with WC amenity. This additional space would also serve as a 'den/hobby/play/utility room' etc. The upper levels enjoy light and airy split-level accommodation with a feature marble fireplace to the front reception. There is opportunity to create a Roof Terrace akin to neighbouring houses subject to any required consents. Harberton Road is located within the very popular Whitehall Park conservation area, nestled between Highgate, Crouch End and Archway. Public transport is close by as are primary and secondary schools. Four Bedrooms Two Reception Rooms Studio/Office/Play/Utility Room with WC Fitted Kitchen 21ft Garden Secondary Street Level Entrance Total internal floor area: 1735 SQ FT / 161 SQM |
Facade |
Office / Playroom - 4.8m (15ft 9in) x 4.37m (14ft 4in) |
Front Reception - 4.42m (14ft 6in) x 3.73m (12ft 3in) |
Rear Reception - 4.22m (13ft 10in) x 3.53m (11ft 7in) |
Rear Reception - Kitchen |
Kitchen - 3.4m (11ft 2in) x 2.62m (8ft 7in) |
Bedroom 1 - 4.9m (16ft 1in) x 3.81m (12ft 6in) |
Bedroom 2 - 3.51m (11ft 6in) x 3.02m (9ft 11in) |
Bedroom 3 - 3.61m (11ft 10in) x 2.21m (7ft 3in) |
Shower Room - 2.54m (8ft 4in) x 2.01m (6ft 7in) |
Landing |
Bedroom 4 - 3.53m (11ft 7in) x 3.02m (9ft 11in) |
Bedroom 4. - 4.44m (14ft 7in) x 3.02m (9ft 11in) |
Garden - 6.4m (21ft 0in) x 5m (16ft 5in) |
